[주장ㆍ제언] 전주시에 묻습니다(2)

※본 글(주장·제언)은 필자가 2020년 8월 18일 <전북의소리>에 기고한 '전주시의 토건세력 야합을 고발합니다'와 관련한 후속 내용입니다. 

[해당 기사: (http://www.jbsori.com/news/articleView.html?idxno=1418)]


2년 여 동안 특혜 논란 등 문제가 제기돼 왔던 곳은 전주시 완산구 '신촌2지구 주택건설사업 및 지구단위계획구역 및 계획 결정(안)'에 해당되는 사업지구로 총 사업비 1,200억 원에 이르는 임대아파트 430세대 신축사업입니다. 

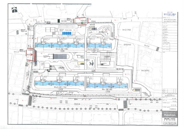
최초 대지 면적은 2만 4,090㎡(7,277평), 세대수 33평형 430세대(지하 1층에서 지상 25층 동일)인데 반해, 수정안 대지 면적은 2만 1,577㎡(6,527평), 세대수 33평형 405세대(지하  1층에서 14층, 19층, 20층, 22층, 23층, 25층으로 구분)로 변경되었습니다.(아래 도면 사진 참조)

도면 사진(최초 계획안)
도면 사진(최초 계획안)
도면 사진(현재 수정안)
도면 사진(현재 수정안)

구체적으로 살펴보면 해당 사업지역은 대지 면적이 최초 2만 4,090㎡에서 수정안 2만 1,577㎡로 2,513㎡(특혜 의혹이 있던 공영주차장 및 시유지와 사유지 제외)가 줄어들고, 세대수는 430세대에서 405세대로 25세대가 줄어들었습니다. 

그러나 줄어든 세대를 시세대로 따져보면, 현재 아파트 33평 분양가(평당 1,000만 원) 3억3,000만 원 기준 25세대면 82억 5,000만 원에 이르는 엄청난 특혜가 발생하는 것입니다. 

또한, 기존 공영주차장 및 시유지와 사유지를 포함했을 때는 아파트 4개동이 25층으로 동일하게 설계되었는데, 이를 제외하였을 경우 최저 14층까지 낮아지게 됩니다. 이는 필자가 줄곧 주장했던 바와 같이 도로를 기준으로 아파트의 층고 등의 제한을 받기 때문입니다. 

"'전주시에 묻습니다', 647일 만에 특혜 의혹의 실체 드러나" 

그동안 일련의 추진 과정을 보면, '토건세력'들은 바로 이러한 점을 이용하여 이익을 취하려 했고, 전주시 건축행정 또한 이러한 상황을 잘 알면서도 묵인 내지는 동조하거나 심지어 거짓으로 일관했음이 드러난 셈입니다. 

위와 같은 수정안이 나오기까지 이곳에 모두 열거하지 못할 정도로 많은 일들이 있었습니다. 특히 회유와 협박은 물론, 각종 민원과 고소 고발이 이루어졌습니다.

현재 필자를 비롯한 이 지역 거주인들과 형사소송과 민사소송을 진행하고 있으며, 전주시 완산구청의 행정처분에 대한 반박(반론)을 하고 있는 중입니다.

이와 관련해 647일 동안 SNS 상에서는 '전주시에 묻습니다'를 통해 시민 공론화가 이루어져 왔습니다. 물론 토건세력들은 자신들과는 무관하다고 발뺌을 합니다. 전주시 또한 그동안 '전주시에 묻습니다'에 대해 묵묵부답으로 일관해 왔습니다. 

그럼 누가 왜 그랬냐는 것인데 이에 대한 대답은 못합니다. 그나마 토건세력과 관련된 브로커를 통해 간접적으로 연관되어 있음을 확인하였습니다. 사정이 이러한데도 불구하고 전주시가, 김승수 전주시장이 이러한 특혜 의혹을 몰랐다고 할수 있을까요?

김승수 전주시장은 “몰랐다. 부족했다. 살펴보겠다”고 했었지만 과연 무었을 했는지 묻지 않을 수 없습니다. 

아래 전주시의회 제363회 제2차 본회의(2019년 9월 5일)에서 제기된 일부 내용에서도 확인된 바와 같이 김윤철 전주시의원의 질의로 무엇이 특혜인지 분명하게 지적했고, 당시 김승수 시장은 이를 분명하게 인지했습니다.

▲전주시의회 제363회 제2차 본회의(2019년 9월 5일) 유튜브 동영상

당시 질의와 답변내용은 다음과 같습니다. 

○ 김윤철 의원 : 그리고 두 번째로 원래 임대주택사업의 부지는 공영주차장이 포함되어 있었어요. 들끓듯이 난리가 나니까 이차적으로 다시 사업부지를 조정한 건데 그래서 일부에서는 현행 8m 도로도 유실되면서 사업부지에 포함되게 되면 온당치 못하다고 생각하는데 공직생활을 오래하셨으니까 시장님께서 잘 아시지 않습니까? 아파트 건축 당시에 도로에 인접해 있으면 조망권 내지 일조권 침해를 받기 때문에 전체 용적 건폐율이 낮아져요. 즉 세대수가 적어져요. 그건 아시죠?

○ 김승수 시장 : 사실 거기까지는 잘 몰랐습니다. 세대수가 낮아지는 데까지는 잘 몰랐습니다.

○ 김윤철 의원 : 그것도 모르시면 어떻게 한대요?

○ 김승수 시장 : 제가 좀 부족했습니다.

○ 김윤철 의원 : 세대수가 줄어들어요, 도로에 인접하면. 일조권 내지 조망권 때문에, 한 가지 예를 들면, 도로에 편입시켜 버리면 그것이 어느 정도 완화되니까 세대수가 대폭 늘어나요. 그러니까 세간에서 볼 때는 그 업체에 혜택을 준다라고 오해를 안 할 수가 없어요.

이러한 것들을 SNS를 통해서 빨리빨리 대처해 가지고 민원을 해소하고 의혹을 불식시키는 강력한 대응으로 마무리 지어야 되는 것인데 행정에서 잘못하니까 의회까지 가부시끼로 망신당하잖아요? 조례 개정을 통해서 이런 것들을 막아 나가야지 의회는 뭐하냐고, 행정이 잘못하고 있는데 의회에서는 왜 수수방관하냐고 우리까지 핀잔을 듣게 만드시냐고요?

이 문제에 관해서도 앞으로 명백히 방향을 설정하시고 어떻게 해야만 민원이 해소되고 해당 지역 주민들에게 가슴 아픈 사람이 안 생기도록 할 것인가라는 것을 공익적인 목적에서, 공공적 차원에서 다시 접근하시기 바랍니다. 하실 수 있죠?

○ 김승수 시장 : 의원님, 잘 살펴보겠습니다.

그럼에도 2019년 9월 5일 이후 아무런 조치가 취해지지 않았습니다. 이러한 질의와 답변과정 그리고 그 이후 김승수 전주시장은 과연 무엇을 살펴보았을까요? 그리고 왜 거짓말을 했을까요? 여전히 의구심이 남습니다. 

"주민설명회, 밀어붙이기 위한 요식행위" 

오히려 건설업체(자)가 요구하는 사업방법에 맞추려고 2019년 2월 11일 전주시 공고 제2019-137호 (도시관리계획(신촌2지구 지구단위계획구역,계획) 결정 (안)) 열람공고 이후 3차례(총 4회) 열람공고를 진행했고, 주민설명회를 열람공고 4회째 이후 개회한 것도 이해할 수 없는 특혜 행정이라고 생각합니다. 

이 주민설명회가 정당한 절차였다면 2019년 2월 11일 최초 열람공고 이전 또는 직후에 개최되어야 하나, 어찌된 영문인지 많은 문제가 노출된 상태에서 주민설명회를 개최한 것에 대해 전주시가 이 사업을 밀어붙이기를 위한 요식행위이거나 동원된 세력에 의해 자신들에게 우호적인 의견을 개진할 것을 우려하지 않을 수 없었습니다.

그러나 전주시나 건설회사가 틀렸고, 지역주민들이 현명하고 옳았음을 확인했습니다.

지난 8월 11일(화) 오후 3시부터 5시까지 전주시 중화산2동 주민센터 회의실(2층)에서 열린 주민설명회에는 한신코아 및 신동아아파트 등 인근 주민 48명이 참석했고, 전주시에서는 생태도시계획과 과장을 비롯하여 건축과장 등 10여명의 공무원이 자리했습니다.

딩시 주민설명회는 건설업체의 프레젠테이션을 시작으로 전주시의 설명과 주민의 입장 등을 통해 이 사업의 문제점을 지적했습니다. 이 과정에서 건설업체의 사업방식이나 전주시 건축행정의 문제점이 그대로 드러났고, 주민들은 차분하게 문제점을 지적하며 이 사업의 부당성을 주장했습니다.

주민 설명회의 주요 내용은 아래와 같습니다.

< 도로 >

○ 신촌2지구 아파트 주출입 도로가 3차로로 계획되어 있으나, 한신코아 아파트, 신동아아파트, 신촌2지구 아파트까지 교통량을 고려하면 4개 차로 이상을 확보해야 교통혼잡이 줄어들 수 있으며 그동안 도로확장에 대해 수차례 요구하였으나 받아들여지지 않고 있음.

○ 현재 한신코아아파트 주민들은 신촌1길 및 신촌2길 등 양방향 4개도로를 이용하여 서원로 쪽(전주대 및 구청 방향)으로 출 퇴근을 하고 있는 상황이며, 아파트 건축으로 인하여 신촌1길(구청방향) 일부가 없어지고 나머지 3개 도로로 진출입을 하게 되면 교통혼잡이 예상되어 실제 주민들의 요구와 전혀 다른 계획이 되므로 동의할 수 없음.

○ 천변도로에서 좌우회전이 어려운 상태에서 통행이 많지 않은 소로 2-468호선의 개설은 교통혼잡 해소에 도움이 되지 않으므로 실질적으로 교통량이 많은 신촌2지구 아파트 주출입구 도로를 확장하여야함.

○ 현재 도로개설계획 및 교통처리계획 등이 타당하지 않으며 교통영향 평가 결과도 신뢰 할 수 없음.

○ 신촌2지구 아파트의 주출입구를 서원로(대로3-9호선)쪽에 만들 것.

○ 신촌2지구 아파트 부출입구는 비상시에만 이용하는 것으로 계획하였지만 아파트가 준공되면 지켜지지 않을 것이므로 이에 대한 대책 필요함.

< 주차장 >

○ 대체주차장은 신촌2지구 아파트 주민의 주차장이 될 우려가 있고, 인근 주민들이 주차장 이용하는데 불편하므로 현재 주차장을 존치하여야함.

< 기타 >

○ 공동주택 건설로 인한 한신코아아파트 일조권 및 조망권 피해에 대한 대책마련이 필요함.

○ 추후 주민설명회 등 주민들과 어떻게 소통할 것인지에 대한 계획 필요.

○ (방문의견) 한신코아아파트 앞이 저지대로 호우시 침수가 발생하므로 아파트 건설 시 전주천까지 직방류 할 수 있는 우수관로 설치 검토 요망.

○ 쓰레기 무단투기로 인한 해충발생하고 있으므로 쓰레기 처리요망.

< 이보삼 씨 등 주민 의견 > 

○ 한신코아아파트 앞 공영주차장은 막대한 예산을 들여 추진한 주민숙원 사업으로 공영주차장을 폐지하는 것은 예산낭비이며 공동주택 사업자 에게 특혜를 주는 것임.

○ 신촌2지구 아파트 인근에 지역주택조합 아파트까지 건축될 경우 교통량이 증가할 것이기 때문에 교통처리계획 및 영향 검토 시 연계하여 검토해야 할 필요성이 있음.

○ 기존 공영주차장을 존치하면 아파트 간 인동거리 및 이격거리 등의 법적 사항에 따라 현재 계획보다 세대수가 줄어들게 되므로 기존 공영주차장을 폐지하고 아파트 세대수를 늘리는 것은 공동주택 사업자의 이익을 위한 것임.

○ 한신코아아파트 앞 도로개설계획은 굴절된 도로로 아이들 및 어르신들이 사고위험에 노출되게 되는 위험한 도로계획이며, 신촌2지구 아파트 교통 영향평가를 담당한 교통전문가에게 교통사고 위험성에 대해 문의 시 사고위험이 증가한다고 하였으나 이에 대한 대책이 반영되지 않고 있음. (당일 발표한 프레젠테이션 자료 : https://youtu.be/i1oUzd9pR74 

"엉터리 건축행정으로 막대한 예산 및 행정력 낭비, 주민불신 초래" 

이상의 내용으로 볼때 이 임대아파트 사업은 애초부터 잘못되었고 특혜임이 분명하게 확인되었습니다. 그리고 지역주민이 반대하고 여러가지 문제점이 그대로 노출되었음에도 불구하고 엉터리 건축행정으로 인해 막대한 예산 및 행정력 낭비는 물론 주민 불신을 초래했습니다.

전주시에 다시 한 번 묻고 싶습니다. 누구를 위한 행정을 하십니까? 그리고 김승수 전주시장에게 묻고 싶습니다. 누구를 위한 정치를 하십니까? 

/이보삼(시민ㆍ기고인, 2020년 11월 29일 작성)


※<전북의소리> '공론장'은 누구나 참여할 수 있는 열린 공간입니다. 시민 누구나 소통할 수 있는 공간입니다. 이 글에 대한 반대 의견이나 또 다른 제언(주장)을 하시고자 하는 시민들은 <전북의소리> '소통채널(메인화면 상단 우측 배너 참고)'을 통해 언제든지 제보해 주시기 바랍니다. 

저작권자 © 전북의소리 무단전재 및 재배포 금지